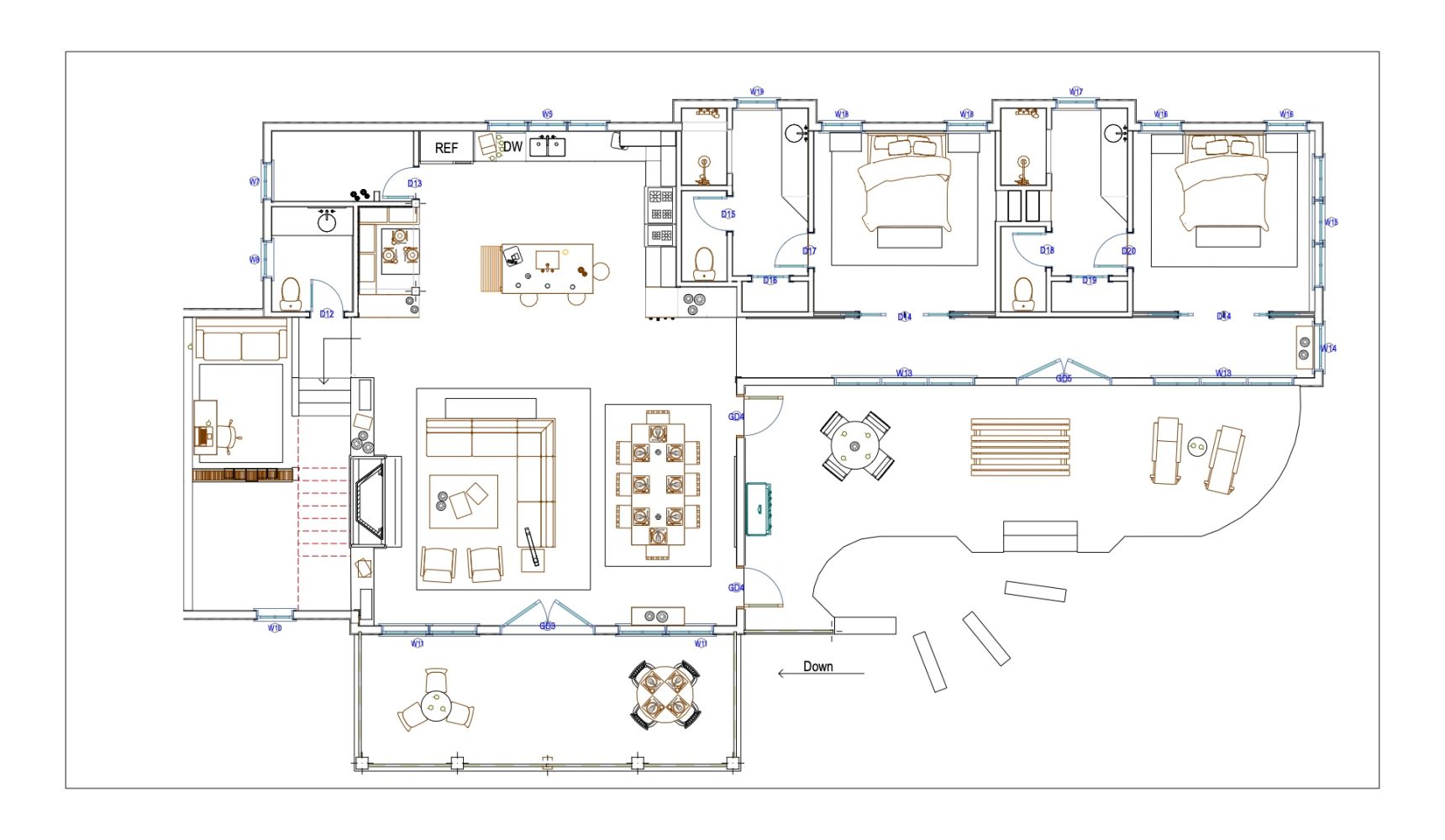
This project is located on an incomparable 35 acre property in Colorado’s Tahosa Valley, with a stream and stunning view of Meeker Mountain. A spokesman for the Family Trust, which includes a former Professor of Steve’s, contacted us to design a new Family Retreat to replace a small and obsolete mid-60s A-frame, also on the 35 acre property and within walking distance of their family-owned historic log cabin.
Similar to the Pete Estes story, Family members have historical ties to this Tahosa Valley property. And, had spent many Summers vacationing in the log cabin and the now inadequate A-frame. So our assignment was to create a new mountain retreat that would help continue the tradition of these family gatherings…in an environment like the treasured log cabin. As an example, we paid particular attention to crafting a bunk room to evoke nostalgia and family togetherness that was important to the clients’ vision.
As inspiration, the Family spokesman couple had stayed in an Italian Dolomite Resort and suggested the architecture and interior ambience as a model (pictured below). We agreed that these luxury cabins were entirely similar to the vernacular architecture of the Tahosa Vally and Allenspark. No problem, we did some creative borrowing.

Again, the attached images depict our design before $$$ were spent.








